< Previous page ^ Table of Contents Next page >

REPORTS

Report of the Council on further development on the Sidgwick Avenue Site

The COUNCIL beg leave to report to the University as follows:

1. Over recent years a number of new buildings have been erected on the Sidgwick Avenue Site to meet the needs of developing Faculties. Before any further facilities were provided the Planning and Resources Committee decided it would be appropriate to revisit the original Master Plan for the site and form a new strategic development plan, not only in terms of accommodation but also with regard to the general infrastructure.

2. Following a space-capacity study by the Estate Management and Building Service and Fitzroy Robinson, a review of the origins of the site and subsequent developments to date has been undertaken through Allies and Morrison, an architectural and masterplanning practice appointed by the Buildings Sub-Committee for this study. Taking into account space requirements for certain existing and future occupants of the site, as determined by the Needs Committee, a Master Plan has been developed by Allies and Morrison identifying the location and extent of new buildings together with infrastructure improvements. This has been discussed and approved by the Buildings Sub-Committee and by the Planning and Resources Committee.

3. It is envisaged that the main points in the Master Plan will include:

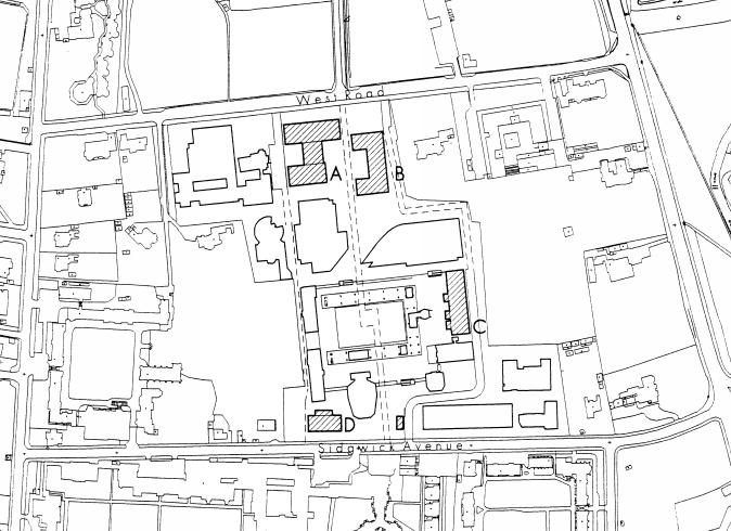
(a) Provision for a greater sense of site identity and 'presence', with well designed and carefully focused points of entry from Sidgwick Avenue and West Road, the latter affording an enhanced linkage with the University Library.
(b) Improved routes through the site for pedestrians, and greater separation of pedestrian and cycle access. There will be no through routes for vehicles, although there will be access for emergency vehicles and for use of the (reduced) car parking areas. All routes will take greater account of the needs of disabled users. A realistic level of cycle-rack provision will be sought.
(c) A central focus on the site so as to provide an area where people will wish to meet and linger; it is possible that this could be around a water feature or other form of architectural art at the centre of the courtyard formed by the Raised Faculty Building.
(d) A number of interesting 'places', mainly courtyards, in part inspired by study carried out by Sir Hugh Casson, flowing from pedestrian routes linking to the central axis of the site.

4. New buildings identified on the attached plan are intended to provide the following net usable spaces:

Site A Faculty of English 3,136 m2
Site B Department of Land Economy 1,700 m2
Generic research space 364 m2
Site C Institute of Criminology 2,800 m2
Site D East Asia Institute 1,500 m2

5. The infrastructure proposals will address issues of lighting, security, waste management, and services supply and distribution.

6. The intention of the Master Plan is to define the full extent of development so as to ensure that these schemes relate to the whole Sidgwick Site and are not undertaken on a piecemeal basis. Also, the Master Plan is intended to afford greater cohesion and form to the site generally, showing clear relationships with surrounding areas and, in particular, the University Library.

7. Drawings identifying the extent of the proposals of the Master Plan are displayed for the information of the University in the Schools Arcade.

8. Subject to the approval of the recommendations of this Report, the overall Master Plan for the site will be submitted to the City Council for approval of its main principles. At a later stage detailed plans for the individual buildings will be brought forward in Reports to the University in the usual way, as funding becomes available.

9. The Council recommend

That approval be given to the principles of the Master Plan for the Sidgwick Site as described in this Report.

11 December 2000

ALEC N. BROERS, Vice-Chancellor
A. J. BADGER
C. R. J. BAILEY
A. L. R. FINDLAY
GORDON JOHNSON
MELISSA LANE
JOHN A. LEAKE
A. M. LONSDALE
C. LUDLOW
ONORA O'NEILL
JEREMY SANDERS
M. SCHOFIELD
DAVID M. THOMPSON


< Previous page ^ Table of Contents Next page >

Cambridge University Reporter, 13 December 2000
Copyright © 2000 The Chancellor, Masters and Scholars of the University of Cambridge.