| Next page |
The COUNCIL beg leave to report to the University as follows:
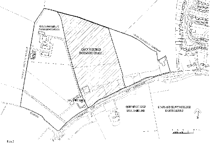
1. The Council, on the recommendation of the Planning and Resource Committee, have recently agreed to purchase from the Master, Fellows, and Scholars of Downing College, at a price of £8m, the College's playing fields at Long Road in order inter alia to facilitate the construction of a new cancer research building, in conjunction with the Imperial Cancer Research Fund (ICRF), details of which will shortly be provided to the Regent House by means of a Report from the Council.
2. The extent of the land which lies adjacent to the Addenbrooke's Hospital Site and which comprises approximately 3.2 hectares (8 acres) is indicated on the first plan accompanying this Report.
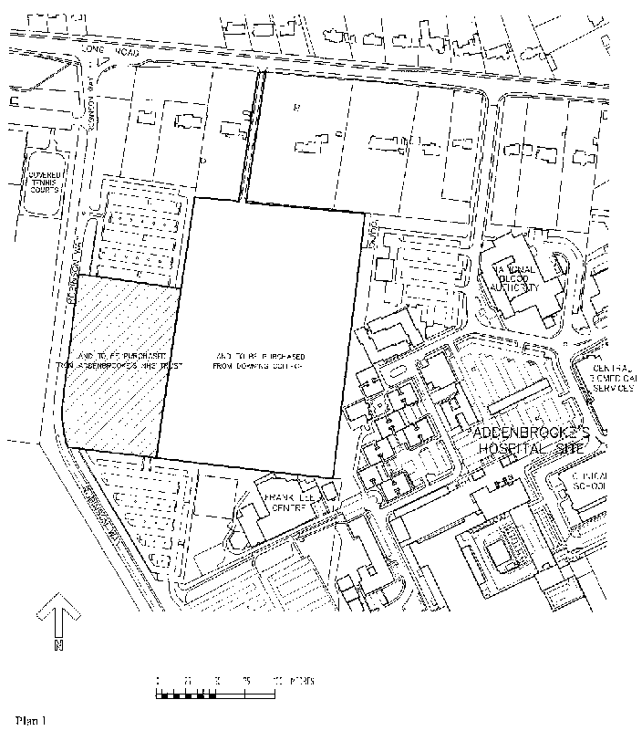
3. Subject to the approval by the Regent House of the recommendations of this Report, the Council have agreed to provide a replacement sports facility for the College through the sale to the College of part of the Laundry Farm Site on Barton Road.
4. Agreement for sale and purchase is conditional on a number of matters relating to the grant of planning permission, the removal of restrictive covenants, agreement with the Addenbrooke's NHS Trust for the purchase of additional land and the granting of full rights of access and servicing for the Long Road Site, approval by Grace as set out in paragraph 3 above, and a satisfactory environmental audit of the Laundry Farm Site.
5. The extent and location of land to be released at Laundry Farm has been subject to lengthy discussion and consultation with the College regarding their requirements for their new sports facility. The agreed site together with adjoining land is currently used by the University Farm for the purpose of grazing land. As a result of discussions with the University Farm, it has been established that there will be no objection to the loss of this grazing land which is not regarded as being critical to the Farm's operation. Statutory compensation will be payable to the University Farm for the loss of this land.
6. Although it is proposed that the new playing facility will be located to the rear of the site, it has been agreed to include in the conveyance the land fronting Barton Road. As a consequence of this, provisions have been made within the agreement for the short-term retention of this frontage land by the University Farm on a farm business tenancy. Provision has been made in the agreement for the reservation of a permanent right of access for the University across this site linking the existing access road and the University land to the east of the playing field. The total area of the land to be sold to the College comprises approximately 8.1 hectares (19.3 acres) and is indicated on the second plan accompanying this Report. On the basis that the land is to be transferred at agricultural value, (£6,177 per hectare, £2,500 per acre) the Agreement provides for a clawback arrangement whereby in the event that the College pursues an alternative use the University will receive a percentage of any development value realized by the College on a reducing basis (starting at 50% in the first five years reducing in four steps to 5% in perpetuity after 75 years).
7. The terms for the eventual completion and granting of vacant possession of both sites provide for a vacant possession date which will provide sufficient time for the construction and delivery of the completed research facility by June 2004, in accordance with the understanding reached with ICRF.
8. Negotiations are also taking place with the Addenbrooke's NHS Trust for the University to acquire a sixty-year long lease, with the option to acquire the freehold interest, in part of the land situated at the Addenbrooke's Hospital Site, owned by the Trust, as also indicated on the first plan. This will enable the development of the whole site for the ICRF cancer research centre together with residential accommodation for students and/or nurses and/or other employees working at the Addenbrooke's Hospital together with associated car parking. It is proposed that Addenbrooke's NHS Trust will have an option to acquire the land needed for accommodation purposes from the University: details of the consequential land transfer will be contained in the Report to the Regent House referred to above.
9. The land purchases described in this Report will be financed from the University's Land Fund, with assistance from the donors involved in funding the ICRF cancer research centre.
10. The Council accordingly recommend
That approval be given for the sale to Downing College of the land at Laundry Farm, Barton Road, as shown on the accompanying plan.
| 24 September 2001 | ALEC N. BROERS, Vice-Chancellor | GORDON JOHNSON | JAMES MATHESON |
| PAV AKHTAR | IAN LESLIE | Z. NORGATE | |
| TONY BADGER | A. M. LONSDALE | JEREMY SANDERS | |
| JOHN BOYD | D. W. B. MACDONALD | M. SCHOFIELD | |
| PETER GODDARD | M. D. MACLEOD | LIBA TAUB |
| Next page |
Cambridge University Reporter, 3 October 2001
Copyright © 2001 The Chancellor, Masters and Scholars of the University of Cambridge.