< Previous page ^ Table of Contents Next page >

REPORTS

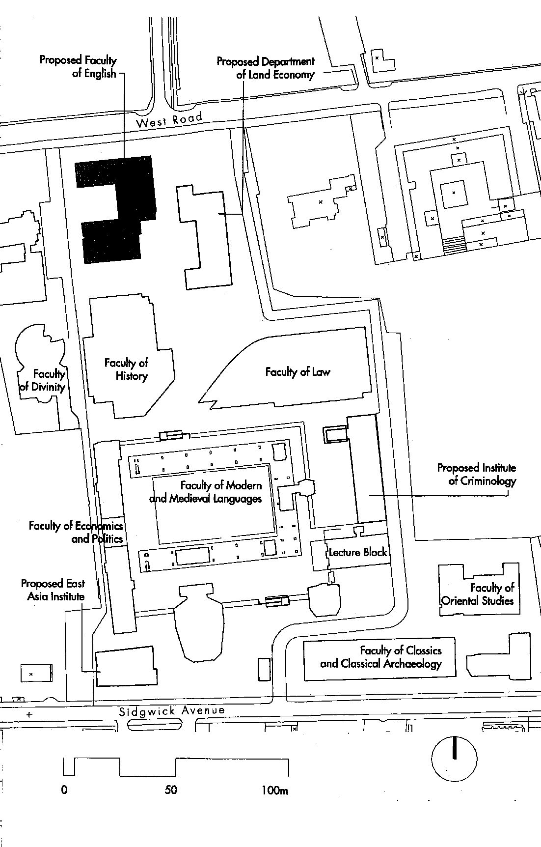
Report of the Council on the construction of a new building for the Faculty of English on the Sidgwick Avenue Site

The COUNCIL beg leave to report to the University as follows:

1. The Council reported to the University in December 2000 (Reporter, 2000-01, p. 309) on proposals for the further development of the Sidgwick Avenue Site. That Report introduced a new Master Plan for the site, which contained general infrastructure proposals and identified a site for a new building for the Faculty of English, including the Department of Anglo-Saxon, Norse, and Celtic, and the Research Centre for English and Applied Linguistics.

2. The proposed building will offer approximately 3,000 sq.m. of useable space on five floors, including a basement. The design allows flexibility to convert cellular offices to open plan and to achieve 3,300 sq.m. of useable space if this is needed in the future. Facilities provided within the present design include space for administrative and academic staff, seminar rooms, a library, a boardroom/conference room, postgraduate workspaces, and shared social space for Faculty members and students. There will also be a drama studio and associated facilities in the basement. The three-sided building encloses a courtyard and this will be landscaped following the principles established in the Master Plan.

3. For the past thirty years, administrative offices, a small number of offices for academic staff, and three seminar rooms have been available to the Faculty of English and the Department of Anglo-Saxon, Norse, and Celtic in a Victorian villa at 9 West Road. The replacement of this building and that at 7 West Road was the subject of an earlier Report on the provision of new accommodation for Arts Faculties on the Sidgwick Avenue Site in 1995 (Reporter, 1994-95, p. 456). In addition, the English Faculty Library occupies part of the Raised Faculty Building, while the Research Centre for English and Applied Linguistics occupies part of Keynes House in Trumpington Street. The new building will bring together the disparate parts of the Faculty and provide more appropriate accommodation for teaching and learning and for research. The new building will also fulfil the Faculty's need for a drama studio and the Faculty Board of English have agreed that funds available from the Judith E. Wilson Fund should be used to cover the construction and fitting out of the studio. The building will provide a public presence and a focus for English studies within the University.

4. Cambridge City Council approved the principle of the new building for English within their approval of the Sidgwick Site Master Plan. Following on from this, a detailed planning application for the Faculty of English was submitted on 27 July 2001. On 23 January 2002, the City Council issued a Draft Decision Notice, subject to the University signing a Section 106 Agreement. The Agreement will commit the University to paying a fixed sum towards public infrastructure that the City Council must provide to support the new development. Details of the Agreement are still under discussion, but will cover traffic calming and pedestrian crossings on West Road. Provision for the estimated cost of implementing the Agreement has been made within the project budget.

5. The project budget is £15.16m, including inflation uplift, and assuming a start on site during July 2002. Funding sources are as follows:

 £m
Donations6.842
University New Buildings Enabling Fund5.756
Higher Education Funding Council
(For the provision of research facilities
and teaching and learning facilities
in the new building)
2.562

6. It is estimated that the running costs of the new building will amount to £110,000 a year. The Faculty Board are very aware of the need to contribute to running costs and possibilities for income generation have been exploited within the building design, particularly of the ground floor and drama studio areas. The Faculty Board expect that £30,000 a year will be generated from hire of facilities and £12,000 a year will be generated from fees for a proposed new M.Phil. course in English literature in the period since 1830. Under the proposed Resource Allocation Model (RAM) it will be possible to use these fees in part to support infrastructure costs. The balance of the additional recurrent costs will add to the University's estates costs in respect of which there will be a charge against the Faculty under the RAM.

7. Drawings of the proposed scheme are displayed for the information of the University in the Schools Arcade.

8. The Council recommend:

I. That approval be given for the construction of a new building for the Faculty of English as outlined in this Report.

II. That the Treasurer be authorized to accept a tender or tenders for the works in due course within available funding.

10 June 2002ALEC N. BROERS, Vice-ChancellorGORDON JOHNSONJAMES MATHESON
 PAV AKHTARDONALD LAMINGG. A. REID
 TONY BADGERIAN LESLIEJEREMY SANDERS
 JOHN BOYDA. M. LONSDALEM. SCHOFIELD
 PETER GODDARDD. W. MACDONALDLIBA TAUB
 D. A. GOODM. D. MACLEODR. E. THORNTON
proposed Faculty of English


< Previous page ^ Table of Contents Next page >

Cambridge University Reporter, 12 June 2002
Copyright © 2002 The Chancellor, Masters and Scholars of the University of Cambridge.