
The COUNCIL begs leave to report to the University as follows:
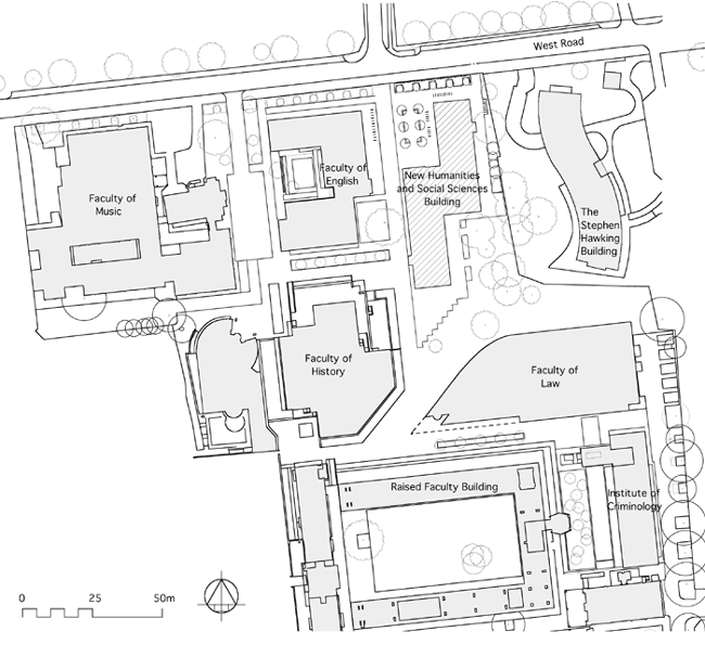
1. The Council reported to the University in December 2000 (Reporter, 2000-01, p. 309) on proposals for the further development of the Sidgwick Avenue Site. This Report introduced a new Master Plan for the site which contained general infrastructure proposals and identified a specific site for a new building for the Department of Land Economy replacing the Victorian villa at 7 West Road. In 2004, Allies and Morrison Architects, who had previously produced the Master Plan for the Sidgwick Avenue Site, were commissioned to develop a design to RIBA Stage D for the new building and planning permission for the proposed building was granted in November 2004. However, funding for the project was not identified and so did not proceed.
2. The Council now proposes that a new building be constructed at 7 West Road which will bring together seven different institutions, most of which are part of the School of the Humanities and Social Sciences. The institutions currently occupy accommodation in different locations on both the Old Press Site and the New Museums Site and are therefore physically isolated. The relocation of institutions from the Old Press Site would also benefit the proposed process of redevelopment of that Site. The seven institutions are as follows:
Centre for Research in the Arts, Social Sciences, and Humanities (CRASSH)
Department of Politics and International Studies (POLIS)
Development Studies Committee (DEV)
Centre of Latin-American Studies (CLAS)
Mongolia and Inner Asia Studies Unit (MIASU)
Centre of South Asian Studies (CSAS)
Centre of African Studies (CAS)
3. The original design developed by Allies and Morrison for Land Economy did not provide sufficient area to accommodate the user groups which it is now proposed should occupy the building: 2,475m2 gross internal area was originally proposed whereas 4,210m2 gross internal area has now been approved. For this reason, and to allow a thorough study of the needs of the Representative Users and the scope for them to share facilities, it was decided to proceed with a completely new design and new design team.
4. The new building is to provide a suitable environment for teaching, learning, and research, and an appropriate public face for events involving national and international visitors. The key aims are as follows:
to allow each institution to retain its identity within a larger whole
to encourage interaction and interdisciplinary working
to provide flexible space that can be adapted to new uses over time
to create a building that will facilitate teaching, learning, and research in a pleasant environment
to use the Sidgwick Avenue Site more efficiently through use of shared timetabled teaching spaces and other facilities
to create a centre with a distinctive presence on the Site
5. The Victorian villa at 7 West Road was last used in 2004 by the Institute of Criminology before the Institute moved to its new building elsewhere on the Sidgwick Avenue Site. It is proposed that the villa be demolished and a new building be constructed with four storeys above ground and a partial basement.
6. The new building will have a north wing and a south wing attached to a central atrium housing the main staircase. The atrium has been designed to allow each of the seven institutions to have its own access and to be located in a position within the building appropriate to its size and way of working. Each will have a private area and access to shared facilities which will include five seminar rooms within the building.
7. In addition to office and research accommodation, CSAS, CAS, and MIASU require dedicated space for their collections of reference material and CSAS and CAS will have additional collection archive and workshop space in the basement. To meet the need for services identified in the Master Plan a café will be sited at the south end of the ground floor where it will be clearly visible and available to all members of the University.
8. The total cost of the building project has been estimated at £16.002m, based on a start on site in January 2010 and completion in July 2011, and is to be funded from the University's HEFCE Capital Investment Framework (CIF) allocation.
9. It is expected that the running costs of the new building will amount to £204,000 a year. The space dedicated to the institutions occupying the building will be lower in total than is provided in their existing accommodation as the new building makes a feature of shared spaces. It will be designed to a BREEAM energy efficiency standard of Excellent. The recurrent running costs will be attributed to the Schools of Arts and Humanities and of the Humanities and Social Sciences in the Resource Allocation Model as at present.
10. Drawings of the proposed scheme are displayed for the information of the University in the Schools Arcade.

11. The Council recommends:
I. That approval be given for the construction of a new building at 7 West Road for the School of the Humanities and Social Sciences and the Centre for Research in the Arts, Social Sciences, and Humanities as proposed in this Report.
II. That the Pro-Vice-Chancellor (Planning and Resources) be authorized to accept a tender for the building contract and all associated works in due course, subject to full funding being available.
| 20 July 2009 | ALISON RICHARD, Vice-Chancellor | M. R. CLARK | F. P. KELLY |
| DAVID ABULAFIA | S. J. COWLEY | VANESSA LAWRENCE | |
| ROSS ANDERSON | M. J. DAUNTON | DEBBIE LOWTHER | |
| NICK BAMPOS | A. M. DONALD | MAVIS MCDONALD | |
| R. J. BARNES | R. J. DOWLING | RACHAEL PADMAN | |
| NIGEL BROWN | DAVID GOOD | DAVID SIMON | |
| WILLIAM BROWN | CHRISTOPHER HUM* | JOAN M. WHITEHEAD | |
| T. CHIGBO |
* The Master of Gonville and Caius College has declared an interest as a member of the Management Committee of CRASSH and as Chair of the Advisory Committee of the former Centre of International Studies.