Skip to main contentCambridge University Reporter

No 6161

Wednesday 14 October 2009

Vol cxl No 2

pp. 57–68

Reports

Joint Report of the Council and the General Board on the title of the Professorship of Botany

The Council and the General Board beg leave to report to the University as follows:

1. In this Joint Report the Council and the General Board propose that the University seek the assent of Her Majesty The Queen that the Professorship of Botany be re-titled the Regius Professorship of Botany, to commemorate the forthcoming visit by Her Majesty to the University on 19 November 2009 (see the Vice-Chancellor’s Notice on p. 58) and the University’s 800th anniversary year.

2. The University currently has six Regius Professorships: of Civil Law, Divinity, Greek, Hebrew, and Physic, all established in 1540; and of Modern History, established in 1724. Regius Professorships also exist at the Universities of Oxford, Edinburgh, Aberdeen, Glasgow, St Andrews, and Trinity College Dublin.

3. The Professorship of Botany, established in 1724, is one of the University’s oldest unnamed Professorships in a fundamental scientific discipline. Although it was not established as a Regius Professorship, its early royal connections are clear: the third Professor, Thomas Martyn, received a patent from His Majesty King George III, and was styled by the Crown as ‘our Public Professor or Reader of Botany’. His successor John Henslow, Professor of Botany, 1824–61, held the office of King’s Reader by patent from the Crown while his appointment to the Professorship was under consideration.

4. As well as being an enduring memorial to Her Majesty’s visit to the University, the Council and the General Board consider that renaming the Professorship would be particularly timely, given the University’s leading role in the current international celebrations to mark the bicentenary of the birth of Charles Darwin, whose scientific mentor was Professor Henslow. The historical context of Darwin’s scientific legacy is mirrored by the importance of the modern field of plant sciences in areas as diverse as food security, biodiversity, conservation, and medicine. Within the University a new Laboratory for fundamental research in plant sciences, generously funded by the Gatsby Charitable Foundation is currently under construction (Reporter, 2007–08, p. 293).

5. The current holder of the Professorship, Professor Sir David Baulcombe, FRS, has been consulted about the proposal which also has the support of the Head of the School of the Biological Sciences. The change of title would have no implications for the procedure for electing the Professor which would continue to be conducted in accordance with Statute D, XV (as is the case for the Regius Professorships of Divinity, Greek, and Hebrew).

6. The Council and the General Board recommend:

I. That permission be sought from Her Majesty The Queen to re-title the Professorship of Botany as the Regius Professorship of Botany.

II. That, subject to the approval of Her Majesty The Queen in Council, the Statutes of the University be amended as follows:

Statute D

The University Officers

Chapter XIV

The Professors

Section 1.

By amending the first clause so as to read:

There shall be in the University the Regius Professorships of Divinity, Civil Law, Physic, Hebrew, Greek, Modern History, and Botany;

21 September 2009

Alison Richard, Vice-Chancellor

M. R. Clark

F. P. Kelly

David Abulafia

S. J. Cowley

Julia F. Li

Ross Anderson

M. J. Daunton

Debbie Lowther

N. Bampos

A. M. Donald

Mavis McDonald

R. J. Barnes

R. J. Dowling

Rachael Padman

Nigel Brown

David Good

David Simon

William Brown

Christopher Hum

Joan M. Whitehead

Thomas Chigbo

11 September 2009

Alison Richard, Vice-Chancellor

Philip Ford

J. Rallison

N. Bampos

Simon Franklin

Jeremy Sanders

John Bell

Andrew Gamble

J. G. P. Sissons

Tom Blundell

Rachael Padman

I. H. White

William Brown

Report of the Council on the construction of a new building for the Department of Materials Science and Metallurgy at West Cambridge

The Council begs leave to report to the University as follows:

1. The West Cambridge Master Plan was approved by the Regent House by Grace 8 of 14 May 1997 and outline planning approval for the Master Plan was obtained in April 1999. The Master Plan incorporates extensive infrastructure support, and a land-use mix including: University teaching and research facilities; research organizations including incubator units for science-based businesses; shared amenities – sports facilities, cafes, shops, and campus centre facilities; residential use – accommodation for University staff and postgraduates including a nursery; and a park-and-cycle facility.

2. The Council now proposes that a new building be constructed on the West Cambridge site, consistent with the Master Plan, for the Department of Materials Science and Metallurgy (MSM). There has been a longstanding intention to relocate the Department to the West Cambridge site and the relocation has been identified as a top priority in the strategic plan of the School of the Physical Sciences. The new building, together with the enhancement of some shared facilities already on the West Cambridge site, will enable the entire Department to relocate to West Cambridge from the centre of Cambridge.

3. MSM currently occupies five different, old buildings on the New Museums Site, with some research equipment housed at the Nanoscience Centre at West Cambridge. Across these locations the Department’s current net useable area is 7,055 sq.m. An Area Needs Analysis and feasibility study were carried out by Architects, RH Partnership, in consultation with MSM to determine the area and type of space required. The studies concluded that a new building should provide a net usable area of 6,170 sq.m. and a gross internal area of 9,325 sq.m. The space analysis was approved by the Resource Management Committee on 19 December 2008.

4. The proposed building will provide state of the art facilities for research and teaching in a single location. Considerable efficiency benefits, therefore, are expected. The key aims of the project are:

to encourage greater interaction and interdisciplinary working;

to provide facilities in a safe working environment which are better suited to current research;

to provide flexible space that can be adapted, in the future, as requirements change;

to create a building that will facilitate teaching, learning, and research in a pleasant environment;

to create a centre for MSM with a distinctive presence at West Cambridge.

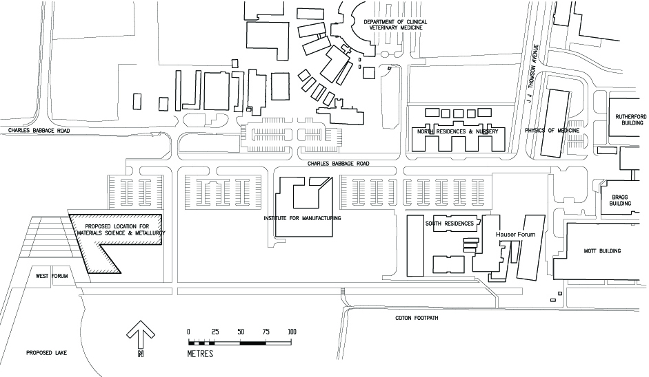
5. The building will include a specialist facility to house very sensitive electron microscopes which have demanding vibrational, acoustic, and electromagnetic environmental needs. The proposed plot for the new building has been carefully selected to ensure the minimum impact from external sources to meet these requirements. The proposed location, bordering the proposed West Forum plaza and near to the junction of High Cross and Charles Babbage Road, is shown on the plan below. The site will be serviced as part of Infrastructure Phase 3 works already under way.

6. The total cost of the project has been estimated at £46.36m. The cost includes construction of the new building and increasing the capacity of those existing support facilities at West Cambridge which will be shared with other Departments. The cost is based on a start on site in March 2010 and completion in December 2011 and is to be funded from the University’s HEFCE Capital Investment Fund (CIF) allocation and a grant of £2.25m from the Wolfson Foundation.

7. It is expected that the running costs of the new building will amount to £708,000 a year which represents a decrease of £95,000 on the existing charges.

8. The new building will be designed to achieve a BREEAM rating of ‘Very Good’, which is the minimum required by the University. Attempting to attain a higher rating would not be cost effective and could not be achieved within the existing budget. The City Council’s requirement for 10% on-site renewable energy provision will be met.

9. Drawings of the proposed scheme are displayed for the information of the University in the Schools Arcade.

Drawing of the proposed scheme

10. The Council recommends:

I. That approval be given for the construction of a new building, and associated minor refurbishment, at West Cambridge for the Department of Materials Science and Metallurgy as proposed in this Report.

II. That the Pro-Vice-Chancellor (Planning and Resources) be authorized to accept a tender for the building contract and all associated works in due course, subject to full funding being available.

12 October 2009

Alison Richard, Vice-Chancellor

S. J. Cowley

Vanessa Lawrence

Ross Anderson

M. J. Daunton

J. F. Li

N. Bampos

A. M. Donald

D. Lowry

R. J. Barnes

R. J. Dowling

Mavis McDonald

Nigel Brown

David Good

Rachael Padman

William Brown

Christopher Hum

David Simon

M. R. Clark

F. P. Kelly

Joan M. Whitehead