The Council begs leave to report to the University as follows:
1. Across the Department of Engineering, students are engaged in an extraordinary range of practical projects both within and outside the taught curriculum, bringing innovation to the field and helping to foster enthusiasm for engineering in future generations. In order to build on and develop this success, the Department wishes to reconfigure office and traditional workshop space into a modern central workshop equipped for mechanical, structural, and electronic engineering, in which students will come together outside of the classroom to think, experiment, design, build, and exchange ideas. This space will form the home of student-led projects, school outreach schemes, and the design, build, and test projects of the undergraduate teaching programme.
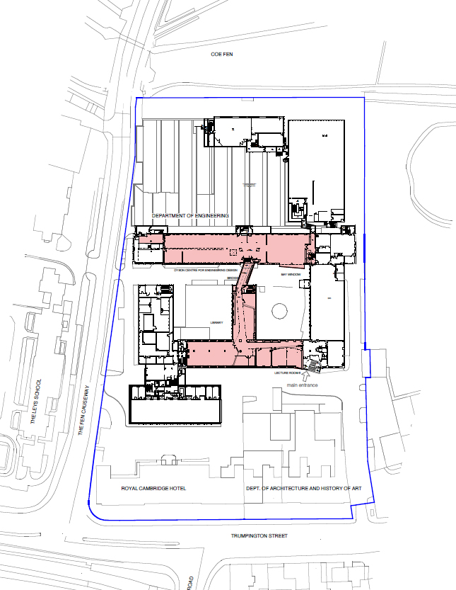
2. The proposed scheme will reconfigure and refurbish space with a gross internal area of 1,630m2 to provide a combination of project, workshop, library, and teaching spaces. It will also improve circulation between the Baker and Inglis buildings with the construction of a ‘bridge link’ at first-floor level.
3. In accordance with the Capital Projects Process, a Full Case was prepared by the Department and subsequently approved by the Planning and Resources Committee at their meeting on 21 January 2015. The cost of the project has been estimated at £4.8m. A grant of £2.65m has been awarded from HEFCE’s science, technology, engineering, and mathematics (STEM) teaching capital fund, and £2m will come from the James Dyson Foundation, in recognition of which gift the refurbished facility will be named the Dyson Centre for Engineering Design. The balance of funding will come from the Department of Engineering, which will also fund a related project to provide student project space within the undercroft of the Inglis building. Funding is also in place to equip the refurbished facility. No significant incremental running costs are anticipated for the new facilities.
4. It is expected that a planning application will be submitted shortly and that a contract will be let so that work can begin no later than May 2015.
5. Drawings of the proposed scheme are displayed for the information of the University in the Schools Arcade. A location plan is shown below.
6. The Council recommends:
I. That approval is given to reconfigure and refurbish existing space within the Baker and Inglis buildings to establish the Dyson Centre for Engineering Design in the Department of Engineering.
II. That the Director of Estate Strategy be authorized to apply for detailed planning approval in due course.
III. That the Pro-Vice-Chancellor (Planning and Resources) be authorized to accept a tender for the works, within the available funding, in due course.
|
3 February 2015 |
L. K. Borysiewicz, Vice-Chancellor |
Nicholas Holmes |
Shirley Pearce |
|
Ross Anderson |
Richard Jones |
John Shakeshaft |
|
|
Richard Anthony |
Fiona Karet |
Susan Smith |
|
|
Jeremy Caddick |
Stuart Laing |
Evianne van Gijn |
|
|
R. Charles |
Rebecca Lingwood |
Sara Weller |
|
|
Anne Davis |
Susan Oosthuizen |
I. H. White |
|
|
David Good |
Rachael Padman |
A. D. Yates |

The Council begs leave to report to the University as follows:
1. In this Report the Council is seeking approval for the development of the Greenwich House site as set out below.
2. A First-stage Report on the development of the Greenwich House site was submitted to the Regent House on 22 October 2014 (Reporter, 6361, 2014–15, p. 65) and approved by Grace 1 of 19 November 2014. This Second-stage Report is to inform the Regent House about the further development of the scheme and to seek approval for construction to proceed.
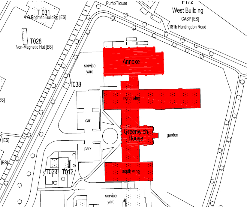
3. As stated in the First-stage Report, the South Wing of Greenwich House is currently occupied by the Finance Division of the Unified Administrative Service (UAS), but the North Wing has been vacant since the Management Information Services Division (now merged with the University Computing Service to form the University Information Services) moved to the Roger Needham Building in 2013. In addition there is an annex to the building which has been leased to Cambridge Display Technology (CDT) and will be vacated in March 2015.
4. It is proposed that the North Wing of Greenwich House, together with the annex, be redeveloped to provide modern office accommodation for a number of UAS units, including Estate Management Division, the Research Operations Office, the University Biomedical Support Services, and sections of the Human Resources Division including Recruitment Services, Grading and Reward, the Pensions Office, Personal and Professional Development, and the Safety Office. The project will provide a total area of 4,239m2, sufficient to provide desk space for all of the units identified above, together with shared meeting and training rooms, communal space, and other shared office facilities.
5. The proposal is consistent with the strategic estate plan for the UAS endorsed by the Planning and Resources Committee at their meeting on 25 June 2014. The principal drivers for the project are the need to achieve the consolidation of the UAS into fewer operational buildings, generating operational efficiencies and savings, and to vacate buildings currently occupied by the UAS on the Old Press / Mill Lane site.
6. The Full Case for the project was approved by the Planning and Resources Committee on 21 January 2015. The total cost of the project has been estimated at £6.6m, to be met from the University’s Capital Fund.
7. Drawings of the proposed scheme are displayed for the information of the University in the Schools Arcade. A location plan of Greenwich House is shown below.
8. The Council recommends:
I. That approval is confirmed for the redevelopment works as outlined in this Report.
II. That the Pro-Vice-Chancellor (Planning and Resources) be authorized to accept a tender for the works, within the available funding, in due course.
|
3 February 2015 |
L. K. Borysiewicz, Vice-Chancellor |
Nicholas Holmes |
Shirley Pearce |
|
Ross Anderson |
Richard Jones |
John Shakeshaft |
|
|
Richard Anthony |
Fiona Karet |
Susan Smith |
|
|
Jeremy Caddick |
Stuart Laing |
Evianne van Gijn |
|
|
R. Charles |
Rebecca Lingwood |
Sara Weller |
|
|
Anne Davis |
Susan Oosthuizen |
I. H. White |
|
|
David Good |
Rachael Padman |
A. D. Yates |
