The Council begs leave to report to the University as follows:
1. In this Report the Council is seeking approval in principle for the construction of a new building on a plot adjacent to the Department of Chemistry, on the site of the Union Road car park, to accommodate members of the Department, to build on current activities, and provide space for new academic initiatives.
2. The Chemistry of Health Centre will enable fundamental discoveries in the molecular processes underlying human disease. It will promote their translation into clinical and commercial applications by providing the infrastructure required for new academic-industrial partnerships. The Centre will provide a unique opportunity to make crucial contributions to the fight against the emerging diseases related to recent changes in age and lifestyle in the modern world. The new building will house the Centre for Protein Misfolding Diseases (CPMD), a Chemistry of Health Incubator, and the Molecular Production and Characterisation Centre (MPACC). The building will enable the CPMD to effect a step change in basic and translational research on molecular approaches to combat modern pandemics such as Alzheimer’s and Parkinson’s diseases and type II diabetes. The Incubator will be at the core of this vision, with research scientists from industrial partners and start-ups occupying laboratory and desk space alongside academics from Cambridge and collaborating institutions. The MPACC will provide support and access to state-of-the-art instrumentation for academic and industrial users in Cambridge and from across the UK.
3. The building will provide flexible research space that can be repurposed as priorities evolve in the future. It will comprise a gross internal area of 2,865m² and will include laboratory, office, and meeting space across six floors. The scheme sits within the central conservation area but the principle of the development has been agreed by a Pre-Planning Application process with Cambridge City Council.
4. The total cost of the project has been estimated at approximately £22.7m. An application for £17.645m has been submitted to HEFCE’s UK Research Partnership Investment Fund (UKPRIF) 2016–17. A decision is anticipated in the spring of 2015. The balance of the funding required to proceed with the project has been raised from philanthropic donations to the Department of Chemistry.
5. A concept paper for the project was approved by the Planning and Resources Committee on 25 June 2014. Further details relating to the design, maintenance, and recurrent costs, with proposals for funding, will be brought to future meetings of the Buildings Committee and the Planning and Resources Committee. A Second-stage Report will be published in due course to seek approval for implementation of the project.
6. The project is planned to be completed so that the new building is operational by autumn 2017.
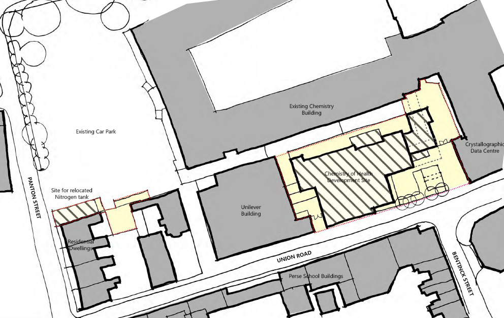
7. A plan showing the location of the proposed new building is shown below.
8. The Council recommends:
I. That approval in principle be given for the construction works outlined in this Report.
II. That the Director of Estate Strategy be authorized to apply for detailed planning approval in due course.
|
16 February 2015 |
L. K. Borysiewicz, Vice-Chancellor |
Helen Hoogewerf-McComb |
John Shakeshaft |
|
Ross Anderson |
Richard Jones |
Susan Smith |
|
|
Richard Anthony |
Fiona Karet |
Evianne Van Gijn |
|
|
Jeremy Caddick |
Stuart Laing |
Sara Weller |
|
|
R. Charles |
Rebecca Lingwood |
I. H. White |
|
|
Anne Davis |
Susan Oosthuizen |
A. D. Yates |
|
|
David Good |
Rachael Padman |
||
|
Nicholas Holmes |
Shirley Pearce |

The Council begs leave to report to the University as follows:
1. In this Report the Council is seeking approval for the construction of a new building and refurbishment works for the Cambridge Judge Business School as set out below.
2. A First-stage Report on the construction of a new building and refurbishment works for the Cambridge Judge Business School was submitted to the Regent House on 24 April 2014 (Reporter, 6344, 2013–14, p. 470) and approved by Grace 6 of 21 May 2014. This Second-stage Report is to inform the Regent House about further development of the scheme and to seek approval for construction to proceed.
3. As stated in the First-stage Report, Cambridge Judge Business School (CJBS) urgently needs additional space for executive student teaching and associated offices for academic staff. There is also a need to improve the quality of space available, especially for the delivery of Executive Education programmes. Since the 2005 Strategic Review, which identified the opportunity to create a world-class research-based business school at the heart of the University, student numbers have increased from 324 to 512 and delegate days on Executive Education programmes from 2,510 to 21,516.
4. The development proposals require the demolition of the existing Bridget’s and Nightingale Hostels on Tennis Court Road (which were previously let to Anglia Ruskin University at a net rental income of £265k p.a.) and the subsequent construction of a new building and a linking lobby to the School’s existing building. They include refurbishment work within the existing Ark building and refurbishment of the existing ground floor reception within the School’s main building. The works will also provide a bridge link to a refurbished Keynes House, and some improvements to the Common Room kitchen. In providing 4,790m2 GIA of new space this development will meet the brief for the Executive Education business as well as some of the School’s other requirements. Groups that are expected to be located within the new building include Executive Education, Executive MBA (course delivery and support staff), and around 25 academic staff.
5. The Hostels’ location is one of two identified for expansion of CJBS through preparation of a Master Plan for the Old Addenbrooke’s site. The other is in the CJBS Forecourt and Keynes House on Trumpington Street, which may be redeveloped in the future as the second phase of a two-phase redevelopment of the site.
6. In accordance with the Capital Projects Process, a Full Case was prepared by CJBS and subsequently approved by the Planning and Resources Committee at their meeting on 26 November 2014. The total cost of the development proposals in Tennis Court Road has been estimated at approximately £31.9m. The Council has approved the naming of the new building to be constructed on the site as the ‘Simon Sainsbury Centre’ in honour of the settlor of the Monument Trust, which has committed up to £8m to the project (Reporter, 6350, 2013–14, p. 610). The balance of funding is to be raised by CJBS, which has underwritten the project. The Chest has agreed to make an interest-bearing loan of £12m to CJBS to be repaid over 25 years from the additional revenues enabled by the development. It is estimated that the annual running costs of the new building will be approximately £48.45 per square metre based on the attribution of indirect costs, which cover such items as utilities and maintenance. Considerable efficiency benefits are expected in terms of both space utilization and in operational energy performance that is targeted at the BREEAM Excellent standard. CJBS will also benefit from a recurrent reduction in operating costs as external venue hire and catering costs will be much reduced.
7. The project is planned to be completed so that the new building is operational by September 2017.
8. Drawings of the proposed development are displayed for the information of the University in the Schools Arcade. A plan showing the location of the proposed new building is shown below.
9. The Council recommends:
I. That approval is confirmed for the refurbishment works and the construction of a new building on Tennis Court Road for the Cambridge Judge Business School as proposed in this Report.
II. That the Pro-Vice-Chancellor (Planning and Resources) be authorized to accept a tender for the works, within the available funding, in due course.
|
17 February 2015 |
L. K. Borysiewicz, Vice-Chancellor |
Richard Jones |
John Shakeshaft |
|
Ross Anderson |
Fiona Karet |
Susan Smith |
|
|
Jeremy Caddick |
Stuart Laing |
Evianne Van Gijn |
|
|
R. Charles |
Rebecca Lingwood |
Sara Weller |
|
|
Anne Davis |
Susan Oosthuizen |
A. D. Yates |
|
|
David Good |
Rachael Padman |
||
|
Nicholas Holmes |
Shirley Pearce |
