The Council begs leave to report to the University as follows:
1. In this Report the Council is seeking approval for the construction of a new building on a plot adjacent to the Department of Chemistry, on the site of the Union Road car park, to accommodate members of the Department, to build on current activities, and provide space for new academic initiatives.
2. A First-stage Report on the construction of a Chemistry of Health Centre was submitted to the Regent House on 18 February 2015 (Reporter, 6376, 2014–15, p. 89) and approved by Grace 1 of 11 March 2015. This Second-stage Report is to inform the Regent House about further development of the scheme and to seek approval for construction to proceed.
3. The Chemistry of Health Centre will enable fundamental discoveries in the molecular processes underlying human disease and promote their translation into clinical and commercial applications by providing the infrastructure required for new academic-industrial partnerships. The new building will enable the Department of Chemistry’s Centre for Protein Misfolding Diseases to effect a step change in basic and translational research on molecular approaches to combat modern pandemics such as Alzheimer’s and Parkinson’s diseases and type II diabetes. The building will also house a Chemistry of Health Incubator, with research scientists from industrial partners and start-ups occupying laboratory and desk space alongside academics from Cambridge and collaborating institutions; and a Molecular Production and Characterization Centre, providing support and access to state-of-the-art instrumentation for academic and industrial users in Cambridge and from across the UK.
4. The building will provide flexible research space that can be repurposed as priorities evolve in the future. It will comprise a gross internal area of 2,639m² and will include laboratory, office, and meeting space across five floors.
5. In accordance with the Capital Projects Process, a Full Case was prepared by the Department of Chemistry and subsequently approved by the Planning and Resources Committee at their meeting on 21 October 2015. The estimated project cost is £22.74m. A grant of £17.645m has been awarded to Chemistry of Health from HEFCE’s UK Research Partnership Infrastructure Fund (UKRPIF) 2016–17. The balance of the funding required to proceed with the project has been raised from philanthropic donations to the Department of Chemistry. The building’s operational energy performance is expected to achieve the BREEAM Excellent standard.
6. Construction will be carried out in two phases. Initial enabling works will be undertaken to prepare the site and re-locate the Department’s liquid nitrogen tank and this work is due to commence in December 2015. The main works to deliver the new building are expected to commence in March 2016. The project is planned to be completed so that the new building is operational by autumn 2017.
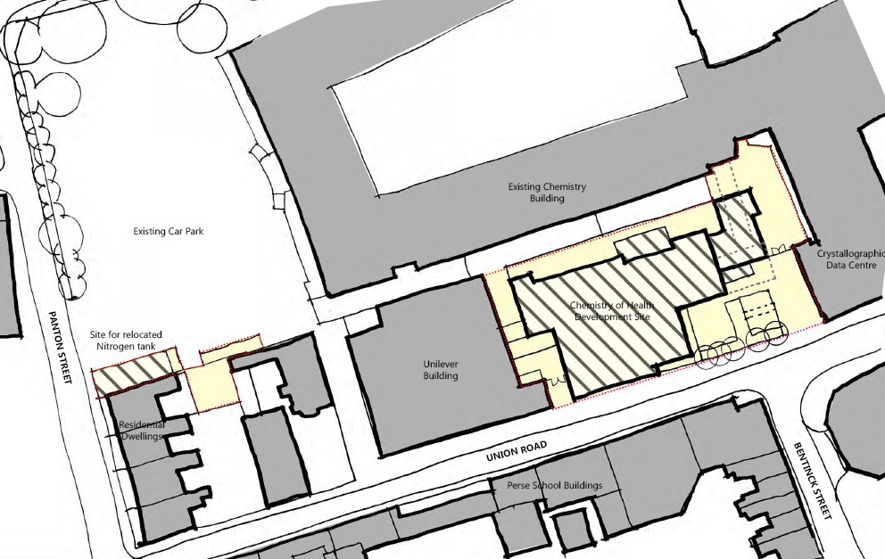
7. Drawings of the proposed development are displayed for the information of the University in the Schools Arcade. A plan showing the location of the proposed new building is shown below.
8. The Council recommends:
I. That approval is confirmed for the construction works outlined in this Report.
II. That the Pro-Vice-Chancellor (Planning and Resources) be authorized to accept a tender for the works, within the available funding, in due course.
|
27 October 2015 |
L. K. Borysiewicz, Vice-Chancellor |
Alice Hutchings |
Rachael Padman |
|
Ross Anderson |
Fiona Karet |
Shirley Pearce |
|
|
Richard Anthony |
Stuart Laing |
Cornelius Roemer |
|
|
R. Charles |
Mark Lewisohn |
John Shakeshaft |
|
|
Anne Davis |
Priscilla Mensah |
Sara Weller |
|
|
Margaret Glendenning |
Susan Oosthuizen |
I. H. White |
|
|
Nicholas Holmes |
Location plan: proposed new Chemistry of Health Centre for the Department of Chemistry
